|   ÜBERSICHT  KW   |



Bahnhofstraße 7b, Büro-/Praxisfläche in Königs Wusterhausen

 

Objekt

Bahnhofstraße 7b, 15711 Königs Wusterhausen

 


 

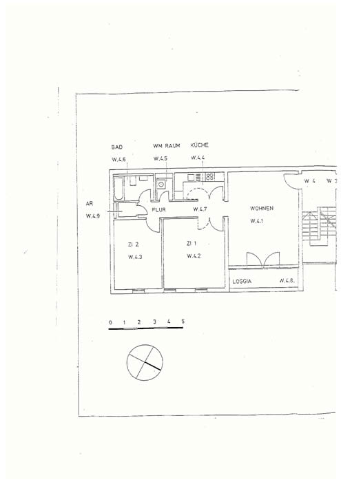
Büro-/Praxisfläche: 91 m² 
Räume: 3
Balkone: 1
Zustand: Neubau 
Baujahr: 1997

 

 

 

Objektbeschreibung:

Das Wohn- und Geschäftshaus befindet sich in einer Ladenpassage in der Fußgängerzone der Bahnhofstraße in Königs Wusterhausen.


Ausstattung:

3 Räume, WC, Küchenbereich, Abstellraum, hauswartgepflegt, Heizung: Fußbodenheizung, Etage: 2.OG, Anzahl Etagen: 3, Balkon, Tiefgaragenstellplatz möglich

1

2

3

4

5

6

7

8

9

10

11