|   ÜBERSICHT  KW   |



Bahnhofstraße 7c, 2 Zimmer-Wohnung in Königs Wusterhausen

 

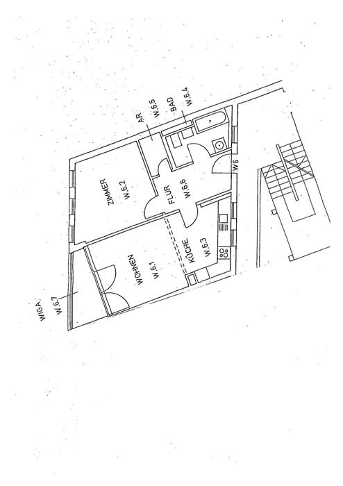
Objekt

Bahnhofstraße 7c, 15711 Königs Wusterhausen

 


 

Wohnfläche: 61 m² 
Zimmer: 2
Badezimmer: 1
Abstellraum: 1
Balkone: 1
Zustand: Neubau
Baujahr: 1997

 

 

 

Objektbeschreibung:
Das Wohn- und Geschäftshaus befindet sich in einer Ladenpassage in der Fußgängerzone der Bahnhofstraße in Königs Wusterhausen


Ausstattung:

2 Zimmer, Küche, Bad, Abstellraum, Heizung: Fußbodenheizung, Wintergarten, hauswartgepflegt, Etage: 2.OG, Anzahl Etagen: 3, Tiefgaragenstellplatz möglich, Keller