|   ÜBERSICHT  FRIEDRICHSHAGEN   |



Bölschestraße 98, 3-Zimmer-Wohnung in Berlin-Friedrichshagen

 

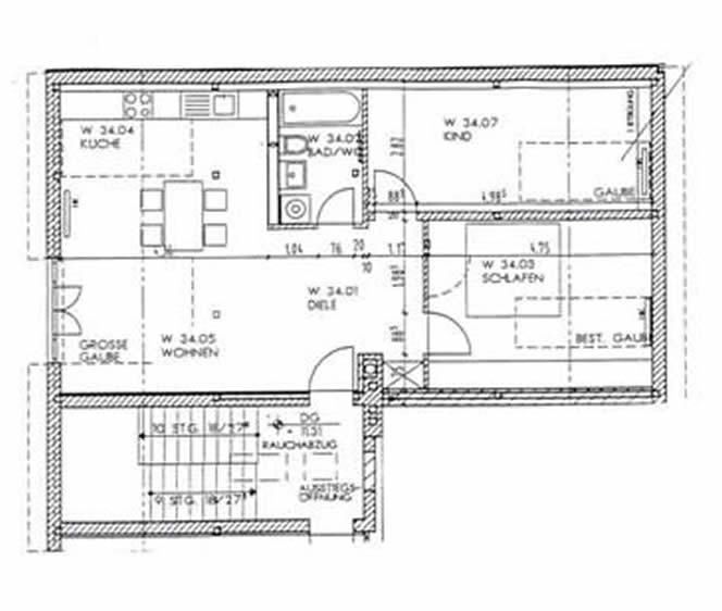
Objekt

Bölschestraße 98, 12587 Berlin-Friedrichshagen

 


 

Wohnfläche:  76 m²
Zimmer:  3
Badezimmer:  1
Schlafzimmer
 1
Zustand: Modernisiert

 

 

 

Objektbeschreibung:
Wohnung im 3. OG (DG) im aufwändig sanierten repräsentativen Jugendstilaltbau, 4 Wohneinheiten, nahe Müggelsee


Ausstattung:

Gaszentralheizung, abgeschlossener Garten, Keller, Einbauküche, modernes Bad, Parkettfußböden, Haustiere nach 

Vereinbarung, PKW-Stellplatz kann angemietet werden