|   ÜBERSICHT  ALTGLIENICKE   |



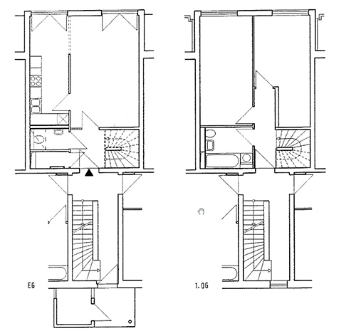
Kasperstraße, 3-Zimmer-Maisonette-Wohnung in Berlin-Altglienicke

 

Objekt

Kasperstraße, 12524 Berlin-Altglienicke


 

Wohnfläche:  81,18 m²
Zimmer:  3
Badezimmer:  1
Gäste-WC:  1
Balkon/Terrasse:  1
Zustand:  Neubau
Baujahr:  1996

 

 

Objektbeschreibung:
Stadtvillen in grüner Lage direkt am Landschaftspark nahe Rudower Höhen.


Ausstattung:

Heizung: Zentralheizung, Terrasse, Keller, Fußboden: PVC/Linoleum, Etage: EG/1, Anzahl Etagen: 3,

Küche: Einbauküche (EBK), Bad: Vollbad, Gäste-WC, Abstellraum, Ausblick: Garten

1

2

3

4

5

6

7

8